Tóparthoz közeli lakóház Délegyházán – 80 méterre a víztől!
35.000.000 Ft
Hirdetés adatlapja
| Hirdető szándéka | kínál |
| Hirdetés típusa (b) | Eladó |
| Használt vagy új? | Használt |
| Ház típusa (belföld) | családi ház |
| Kitől? | közvetítőtől |
| Alapterület (m2) | 50 |
| Szobaszám (félszobával együtt) | 1 szoba |
| Ebből félszobák száma | 1 |
| Megye | Pest megye |
| Település | Délegyháza |
| Utca | Fagyöngy u. 3. |
| Hirdető neve | Hesu |
| Telefonszám | +36705581160 |
| E-mail cím | hesu52@gmail.com |
| Webcím | https://ingatlan.com/35057277 |
Bővebb információ
Tóparthoz közeli lakóház Délegyházán – 80 méterre a víztől!
Délegyháza egyik kedvelt, csendes utcájában – a Fagyöngy utcában – eladásra kínálok egy 336 m²- s telken álló, 50 m²- s, másfél szobás családi házat, mindössze 80 méterre a horgásztótól.
Az ingatlan belterületi, kivett lakóház és udvar besorolású, per- és tehermentes, egyetlen tulajdonostól.
A ház a ’70-es évek végén téglából épült, jelenleg felújítandó állapotban van, így új tulajdonosa saját igényei szerint formálhatja.
Közművek: víz, villany, gáz, csatorna rendelkezésre állnak.
Az udvarban 3 autó számára is kényelmes parkolási lehetőség adott.
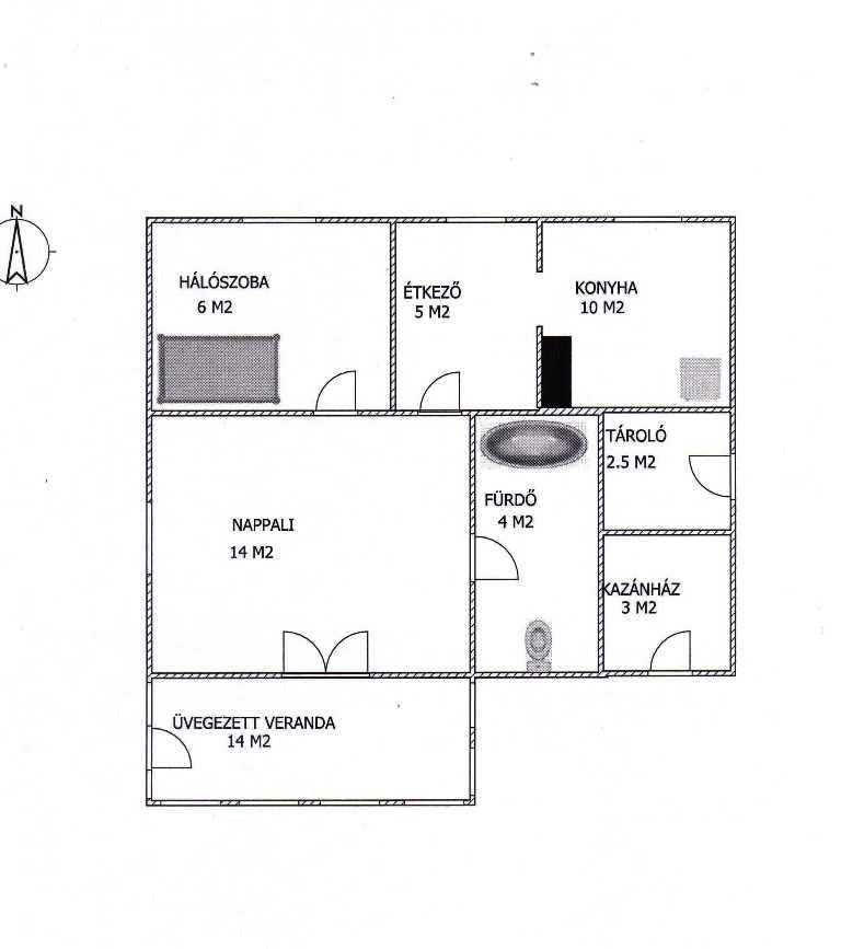
A belső tér elrendezése:
• üvegezett veranda,
• nappali (14 m²),
• hálószoba (6 m²),
• kádas fürdőszoba (4 m²),
• étkező (5 m²),
• konyha (10 m²),
• kazánház (3 m²) és tároló (2,5 m²).
A természet szerelmeseinek ideális választás — a háztól pár lépésre nagy kiterjedésű horgásztó, a közelben pedig a Kiskunsági Nemzeti Park, az Ócsai Tájvédelmi Körzet és a Ráckevei-Duna található.
Tökéletes otthon vagy nyaraló azoknak, akik a nyugalmat, a vízpart közelségét és a természetet keresik.
A környék igazi természeti kincs: tizenkét kavicsbánya-tó, a Kiskunsági Nemzeti Park és a Ráckevei-Duna közelsége varázslatos hangulatot teremt.
Ha egy helyet keresel, ahol lelassulhat az idő, ez az ingatlan tökéletes kiindulópont lehet álmaid otthonához.
Ár: 35. 000. 000 Ft
További szolgáltatások:
– Ingatlaneladásban segítség
– Energetikai tanúsítvány 72 órán belül
– Ingyenes hitelügyintézés
– Jogi háttér és földhivatali ügyintézés
– Országos adatbázisból e-mailes ajánlatküldés
Tel: +36705581160
Képgaléria
|
|
Hirdetés megosztása
Itt üzenhet a hirdetőnek
Az űrlap kitöltése után tudja elküldeni üzenetét a hirdetőnek.
Üzenet a hirdetőnek
Kék Apró-Hirdetés oldal – Ingatlan
- Eladó jó állapotú ikerház Miskolc Zsolcai kapu
- Eladó jó állapotú családi ház Miskolc Bulgárföld
- Eladó jó állapotú panel lakás Miskolc Újdiósgyőr
- Eladó felújított tégla lakás Miskolc Észak-Kilián
- Tóparthoz közeli lakóház Délegyházán – 80 méterre a víztől!
- Szondi lakás
- Eladó felújított tégla lakás Miskolc Győri kapu
- Kiadó felújított panel lakás Miskolc Belváros
- Kiadó felújított tégla lakás Miskolc
- Eladó panzió Miskolc Tapolca



