Kiadó jó állapotú iroda irodaházban Miskolc Belváros (220 m2)
450.000 Ft
Hirdetés adatlapja
Hirdető szándéka | kínál |
Hirdetés típusa (b) | Kiadó |
Használt vagy új? | Használt |
Kitől? | közvetítőtől |
Alapterület (m2) | 220 |
Szobaszám (félszobával együtt) | 6 szoba |
Megye | Borsod-Abaúj-Zemplén megye |
Település | Miskolc |
Hirdető neve | Hausel László |
Telefonszám | +36204552205 |
Webcím | https://www.gammaingatlan.hu/ingatlan/116615 |
Bővebb információ
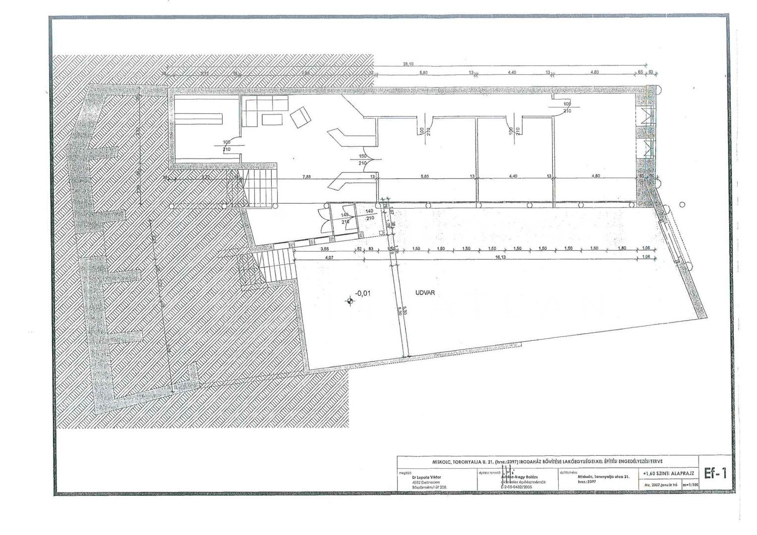
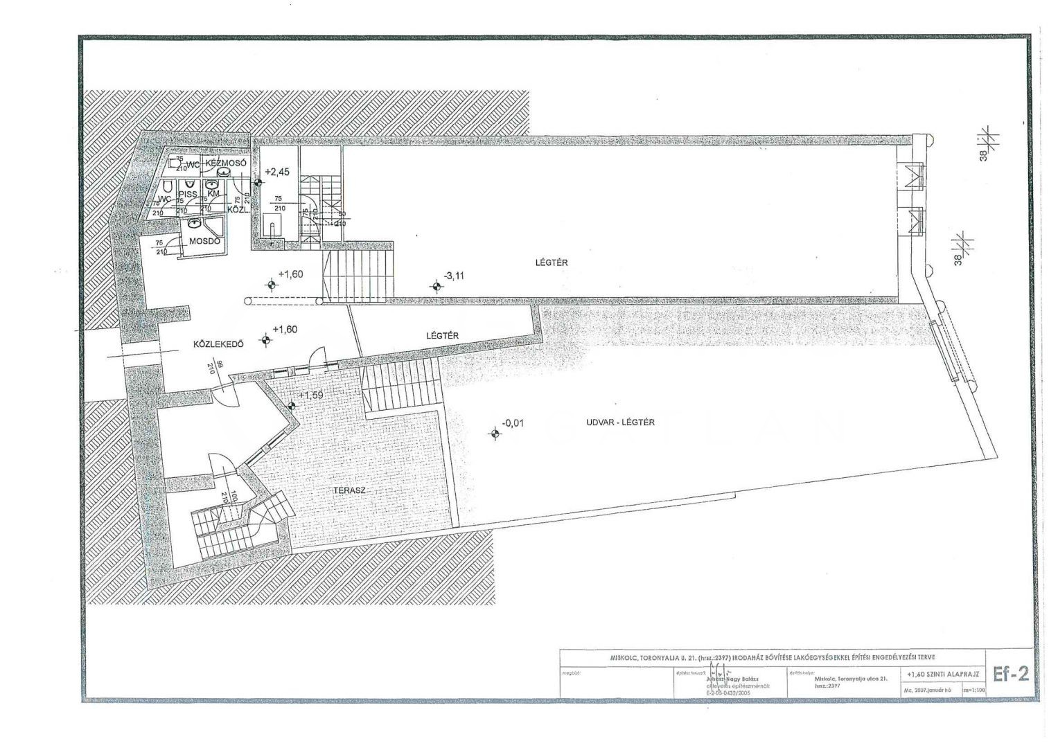
Miskolc belvárosában KIADÓ egy eltolt szintes, 220 m2-es többféle hasznosításra is alkalmas irodaház!!!
iroda ingatlanhirdetés
Miskolc belvárosában KIADÓ egy eltolt szintes, 220 m²-es többféle hasznosításra alkalmas irodaház, amely 866 m²-es telken helyezkedik el!!!
Helyiséglista:
-előtér
-6 db iroda
-mosdó
-WC.
Az igatlan belső eltolt szintes, a földszinti rész 160 m², míg az eltolt szint 60 m²-es.
A tégla építésű irodaház 866 m²-es telken helyezkedik el, amely további bővítésre is kiválóan alkalmas.
A falak festettek, a padlózat járólappal burkolt.
A nyílászárók fa tokozású hőszigeteltek.
A fűtést gázkazán biztosítja radiátor hőleadókkal.
Az ingatlan számos tevékenységre alkalmas, többek között átalakítható lakássá, rendelővé, stb.
Bérleti díj: 450.000 Ft + rezsi + 2 havi kaució
A közelben megtalálható bolt, étterem, piac, egészségügyi központ.
Tömegközlegedés 150 m-re elérhető.
Amennyiben hirdetésem felkeltette érdeklődését keressen a megadott telefonszámon.
(hivatkozási szám: M116615)
Ha érdekli az ingatlan, további képeket weboldalunkon láthat. Az ingatlan azonosítója: 116615
https://www.gammaingatlan.hu/ingatlan/116615
Képgaléria
![]() |
![]() ![]() |




Hirdetés megosztása
Itt üzenhet a hirdetőnek
Az űrlap kitöltése után tudja elküldeni üzenetét a hirdetőnek.
Üzenet a hirdetőnek
Kék Apró-Hirdetés oldal – Ingatlan
- Kiadó jó állapotú panel lakás Miskolc
- Eladó felújított panel lakás Miskolc Újgyőri főtér
- Eladó közepes állapotú üzlethelyiség nem üzletközpontban Miskolc Avas I. ütem
- Eladó jó állapotú ikerház Miskolc Zsolcai kapu
- Tatabányán lakás eladó
- Eladó közepes állapotú tégla lakás Miskolc Belváros
- Eladó újszerű családi ház Miskolctapolca
- Eladó kétszintes családi ház Vácrátóton.
- Tarcalon föld eladó.
- Esztergomi belvárosi családi ház eladó!