Eladó telephely, ipari hasznosításra Sződligeten.
74.900.000 Ft
Hirdetés adatlapja
| Hirdető szándéka | kínál |
| Hirdetés típusa (b) | Eladó |
| Használt vagy új? | Használt |
| Kitől? | közvetítőtől |
| Alapterület (m2) | 124 |
| Szobaszám (félszobával együtt) | 2 szoba |
| Megye | Pest megye |
| Település | Sződliget |
| Utca | Zöldövezeti |
| Hirdető neve | Hesu |
| Telefonszám | 06705581160 |
Bővebb információ
Eladó telephely, ipari hasznosításra Sződligeten.
ÓRIÁSI ÁRZUHANÁS!! 84.9 M Ft-ról 74.9 M Ft-ra.
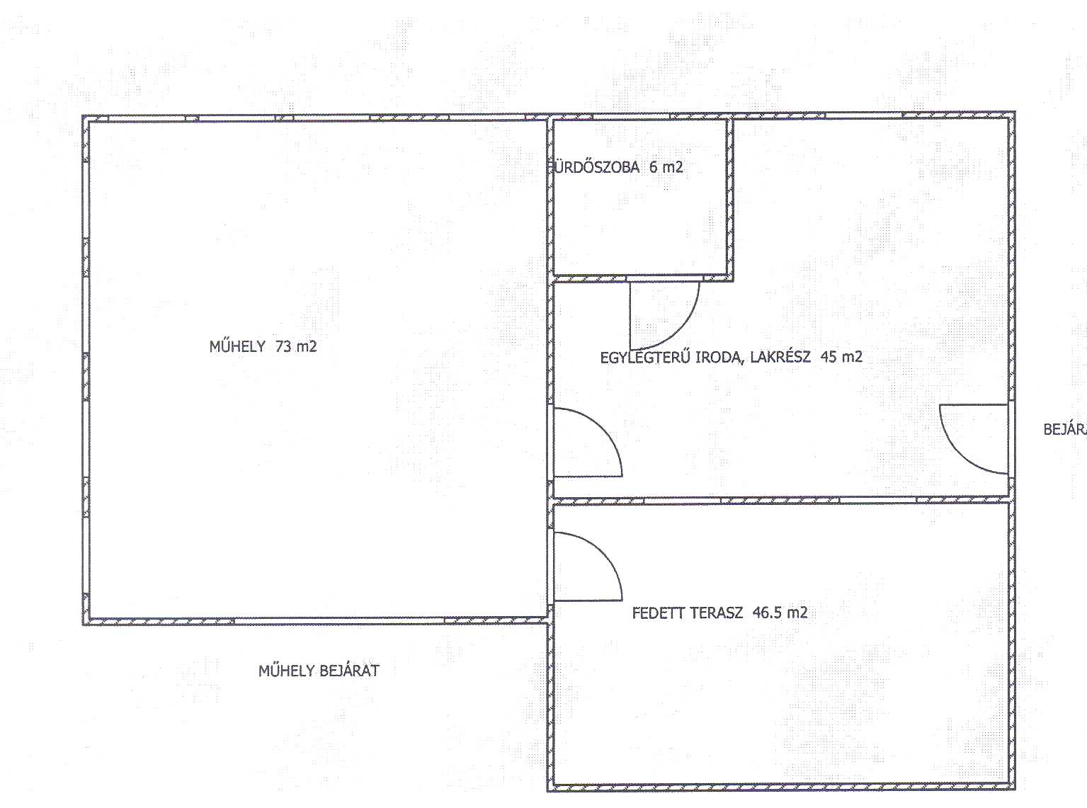
Sződliget határában ipari- gazdasági besorolású övezetben lévő 2462 m2-s körbekerített füvesített telken, 124 m2-s, 30 cm beton alapra épült könnyűszerkezetes (acélvázas) szigetelt falazatú épület műhellyel eladó!
Az épületben 5 méter magasságú 73 m2-s műhely, 5. 71 m2-s fürdőszoba valamint 45 m2-s iroda lett kialakítva.
Az épület előtt 46 m2-s fedett teraszban több lehetőség is rejlik.
Az épületbe páncél földkábelen keresztül jön az áram. Ipari áram 3 x 50 A ipari áram megtalálható,
Víz bevezetése megoldható. Nagy méretű (30 m3) szennyvíztároló és 75 m2-es kutya kennel lett építve.
A telek nehéz gépjárművek számára is biztonságos, zúzott kővel többszörösen tömörített, széles gépkocsi bejáróval, 8 méteres úszókapu (800 kw-os motor) és kamionforduló is kialakítva.
Jelenleg a terület besorolása legelő és az Eladó elindította a terület átminősítését (Gip) Ipari gazdasági övezetté, melynek költségeit az eladás előtt rendezi.
A telekre vonatkozó előírások:
Minimális terület 1500 m2,
Maximális beépíthetőség 40 %
Minimális zöldfelület 20 %
Maximális szintterületi mutató (m2/m2) 1. 5
Épületek és egyéb építmények maximális épületmagassága 6. 5 m
A telephely bármilyen ipari, gazdasági tevékenységre alkalmas (ipari termelőüzem, raktár, tároló építmény, gépjárműtárolók, közlekedési és szállítási létesítmények, irodaépületek, szociális és közösségi létesítmények).
M2-es autópályáról és a 2-es számú fő közlekedési útról egyaránt jól megközelíthető.
Az ingatlan per és tehermentes.
Ár: 74.900.000.- Ft
További információért és a megtekintéssel kapcsolatban, várom megtisztelő hívását!
Amiben még segíteni tudok:
– ha a vásárláshoz még el kell adnia ingatlanát
– energetikai tanúsítvány készítése 72 órán belül
– ingyenes hitelügyintézés
– jogi háttér
– földhivatali ügyintézés
– értékbecslés, piaci ár meghatározás
– költöztetés, lomtalanítás
– ajánlatok küldése e-mailben országos adatbázisból.
Tel: +36705581160
Képgaléria
|
|
Hirdetés megosztása
Itt üzenhet a hirdetőnek
Az űrlap kitöltése után tudja elküldeni üzenetét a hirdetőnek.
Üzenet a hirdetőnek
Kék Apró-Hirdetés oldal – Ingatlan
- Eladó jó állapotú ikerház Miskolc Zsolcai kapu
- Eladó jó állapotú családi ház Miskolc Bulgárföld
- Eladó jó állapotú panel lakás Miskolc Újdiósgyőr
- Eladó felújított tégla lakás Miskolc Észak-Kilián
- Tóparthoz közeli lakóház Délegyházán – 80 méterre a víztől!
- Szondi lakás
- Eladó felújított tégla lakás Miskolc Győri kapu
- Kiadó felújított panel lakás Miskolc Belváros
- Kiadó felújított tégla lakás Miskolc
- Eladó panzió Miskolc Tapolca



