Eladó közepes állapotú üzlethelyiség nem üzletközpontban Miskolc Avas I. ütem (296 m2)

69.900.000 Ft

Hirdetés adatlapja

Hirdető szándékakínál
Hirdetés típusa (b)Eladó
Használt vagy új?Használt
Kitől?közvetítőtől
Alapterület (m2)296
Szobaszám (félszobával együtt)0 szoba
MegyeBorsod-Abaúj-Zemplén megye
TelepülésMiskolc
Hirdető neveTakács Alán
Telefonszám+36204474101
Webcímhttps://www.gammaingatlan.hu/ingatlan/120338

Bővebb információ

Befektetési Lehetőség Miskolcon: 296 m2-es, Két Szintes Ingatlan, Jelenleg Fitneszterem, Akár Bérlővel Együtt!

üzlethelyiség ingatlanhirdetés

ÁRCSÖKKENÉS!
Régi ár: 74.9 M Új ár: 69.9 M

Miskolcon, a Testvérvárosok útján eladó egy kiváló elhelyezkedésű, két szintes, összesen 296 m²-es ingatlan, amely jelenleg is működő kondicionáló és fitneszteremként üzemel. Ideális befektetés, hiszen egyedi megállapodás alapján akár a jelenlegi bérlő is maradhat, biztosítva az azonnali bevételt. Az épület rugalmasan alakítható, így számos egyéb üzleti célra is alkalmas (pl. irodák, orvosi rendelő, szépségszalon, oktatási központ).

Kérjük, vegye figyelembe, hogy az ingatlan vételára nem tartalmazza a képeken látható berendezéseket és felszereléseket, azok a jelenlegi bérlő tulajdonát képezik.

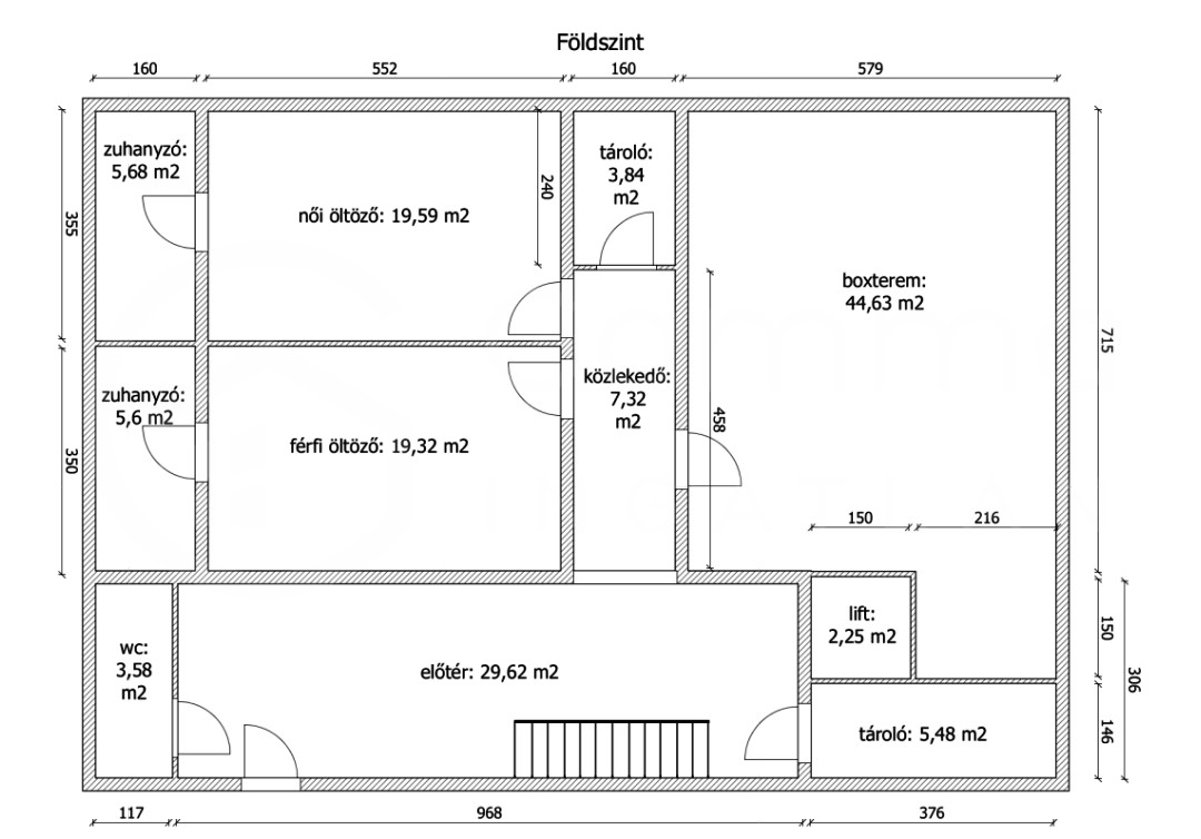
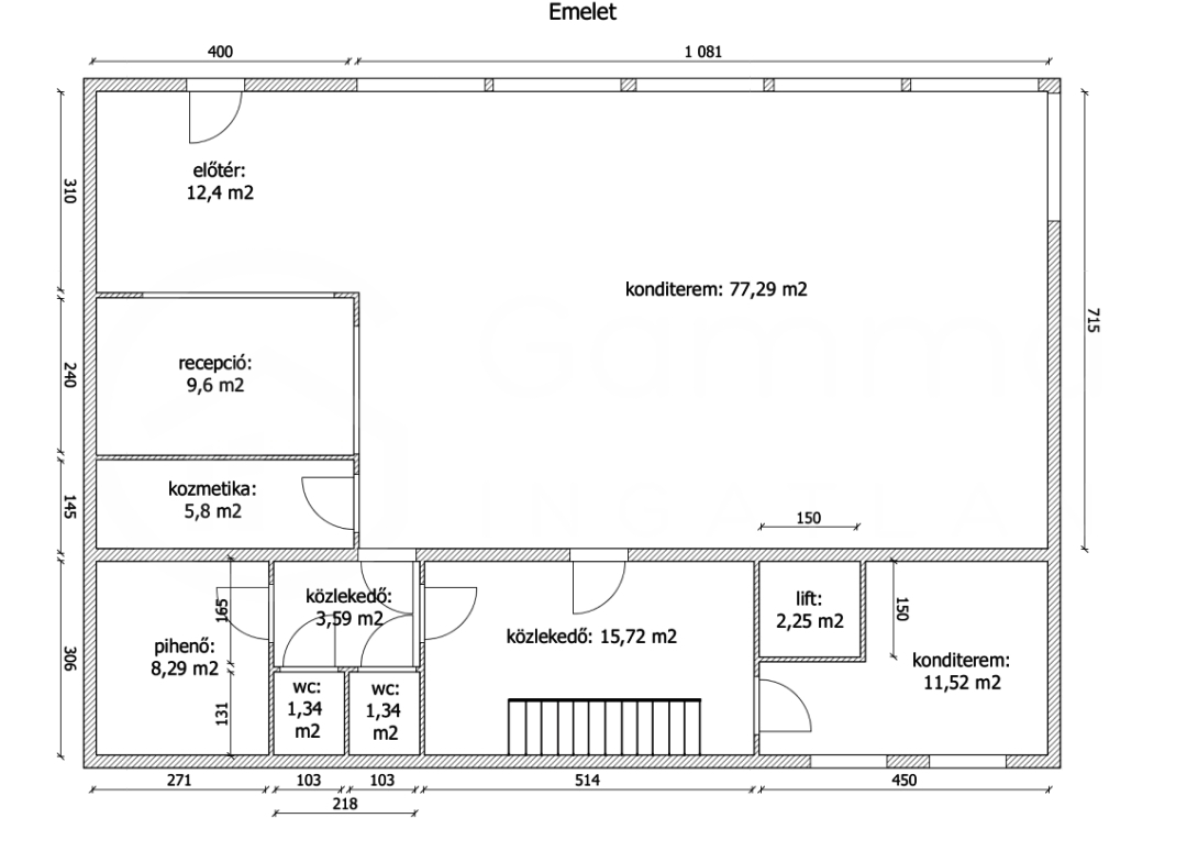
Helyiséglista:
Emelet:
-Funkcionális területek: Tágas konditerem, recepció, kozmetika, pihenő.
-Kiszolgáló helyiségek: Előtér, közlekedő, 2 db WC.
Megjegyzés: A lift jelenleg üzemen kívül van.

Földszint:
-Sportolói területek: Bokszterem, női és férfi öltözők zuhanyzókkal.
-Kiszolgáló helyiségek: Előtér, közlekedő, WC, 2 db tároló.

Környezet:
Az ingatlan Miskolc népszerű, forgalmas részén, az Avas városrészben I ütemében található, közvetlenül a Testvérvárosok útján lévő üzletházban. Panelépítésű társasházak között elhelyezkedő épület, melyben irodák, lakások és üzletek is működnek, kiváló ügyfélbázist és állandó látogatottságot biztosít.

Közlekedés:
Az ingatlan kitűnően megközelíthető autóval és helyi tömegközlekedéssel egyaránt.
Az aszfaltozott út közvetlenül az épülethez vezet, biztosítva a problémamentes rakodást.
A parkolás ingyenes.
(hivatkozási szám: M120338)

Ha érdekli az ingatlan, további képeket weboldalunkon láthat. Az ingatlan azonosítója: 120338

https://www.gammaingatlan.hu/ingatlan/120338